Camera icon View Gallery
Next Button
Prev Button

2 Bed Bungalow For Sale
Villiers Avenue, Whitton

Offers In The Region Of GBP 500,000

Overview

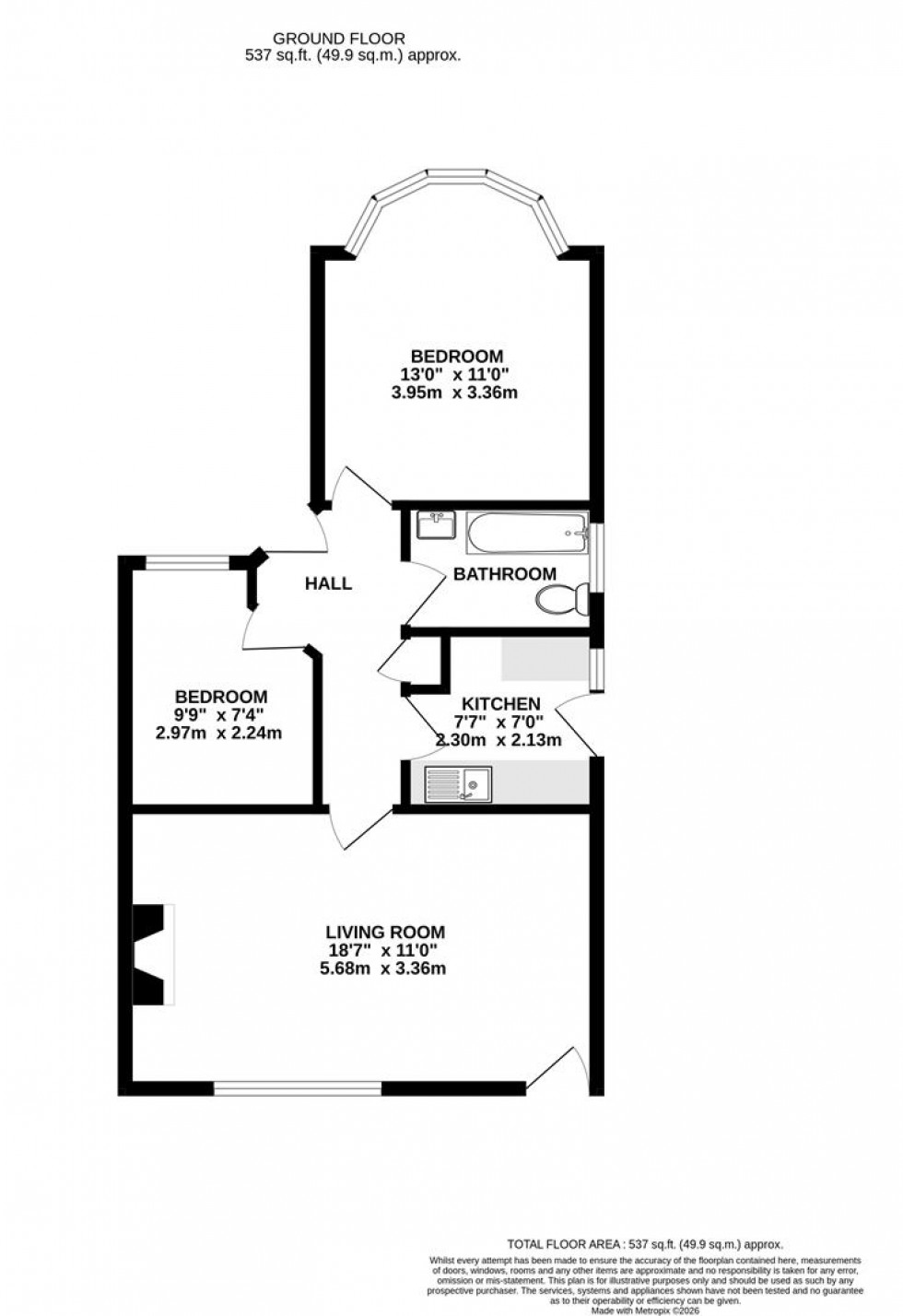
2 1 1

  • Semi detached bungalow
  • No onward chain
  • Two bedrooms
  • Living room
  • Kitchen
  • Bathroom
  • West facing garden
  • Garage and shared driveway
  • Gas central heating
  • Double glazing

AN IDEAL OPPORTUNITY TO ACQUIRE A WELL PROPORTIONED TWO BEDROOM SEMI DETACHED BUNGALOW, OFFERED FOR SALE IN NEED OF SOME UPDATING AND MODERNISING AT A REALISTIC ASKING PRICE, QUIETLY SITUATED ON THE EVER POPULAR WOODLAWN DEVELOPMENT.

FOR SALE

The good size accommodation features a spacious living room which overlooks the garden, a kitchen, two bedrooms and bathroom/WC. Outside there is front garden and side shared driveway leading to a detached garage and a sunny aspect secluded rear garden. The property features gas central heating and partial double glazing but does require some updating and modernising. There is also ample scope to extend into the loft space and also to the rear (subject to the usual planning consents). These works have been reflected in the realistic asking price and the bungalow is being offered for sale with no onward chain.

LOCATION:

Conveniently situated in a quiet road on the popular Woodlawn development with easy access to both Whitton, Twickenham and Hounslow town centres with their shopping, leisure and transport links. The A316 providing direct access to central London and the M3/M25/M4 corridor is also close to hand.

Nearest Stations

  • Whitton - 0.91miles
  • Hounslow - 1.30miles
  • Feltham - 1.38miles
  • Fulwell - 1.47miles
  • Strawberry Hill - 1.72miles

Stamp Duty

Calculate Your Stamp Duty

£

Results

Stamp Duty To Pay:

Effective Rate:

Tax Band % Taxable Sum Tax

Location

Floorplans

Floorplan for Villiers Avenue, Whitton EPC Graph for Villiers Avenue, Whitton

Similar Properties