Camera icon View Gallery
Next Button
Prev Button

1 Bed Bungalow For Sale
Garland Drive, Hounslow

Asking Price GBP 225,000

Overview

1 1 1

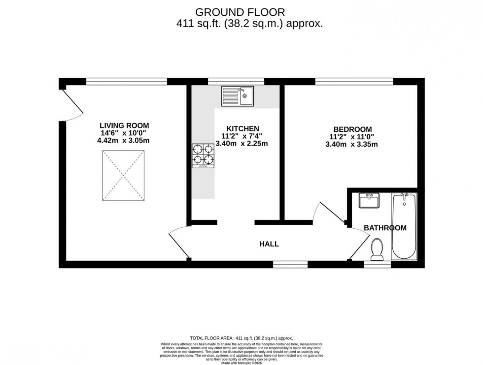
  • Detached bungalow
  • Gated access
  • Double bedroom
  • Living room
  • Fitted kitchen
  • Bathroom/wc
  • Patio
  • Freeehold
  • Cul de sac location
  • No onward chain

A UNIQUE, DETACHED, FREEHOLD, ONE BEDROOM BUNGALOW CONVENIENTLY SITUATED IN A QUIET CUL DE SAC LOCATION CLOSE TO HOUNSLOW EAST TUBE STATION AND LOCAL SHOPS OFFERED FOR SALE WITH THE BENEFIT OF NO ONWARD CHAIN.

FOR SALE:

This unique freehold property is situated to the rear of a terrace of modern homes via secure gated access. The detached accommodation features a generous size living room, a well proportioned fitted kitchen, a good size double bedroom and tiled bathroom/WC with white suite. Outside there is a small patio area ideal for a barbeque or relaxing in the sunshine. Benefits include gas central heating, double glazing and the advantage of no onward chain. An early viewing is highly recommended to appreciate this ideal first time or investment purchase.

LOCATION:

Conveniently situated in central Hounslow within 1/4 mile of Hounslow East tube station, local buses, shops and leisure facilities. The A4 providing access to central London and the M4/M25/Heathrow airport are also close to hand.

Nearest Stations

  • Hounslow East Underground Station - 0.09miles
  • Hounslow Central Underground Station - 0.37miles
  • Osterley Underground Station - 0.64miles
  • Hounslow - 0.77miles
  • Isleworth - 0.93miles

Stamp Duty

Calculate Your Stamp Duty

£

Results

Stamp Duty To Pay:

Effective Rate:

Tax Band % Taxable Sum Tax

Location

Floorplans

Floorplan for Garland Drive, Hounslow EPC Graph for Garland Drive, Hounslow