Camera icon View Gallery
Next Button
Prev Button

3 Bed House - Semi-Detached For Sale
Strathearn Avenue, Whitton

Offers In The Region Of GBP 700,000

Overview

3 1 2

  • Character three bedroom family semi
  • In need of total renovation
  • Good size rooms
  • Favoured residential location
  • Two separate receptions
  • Attached garage
  • Own drive
  • Walk of Whitton high street and station
  • Good size rear garden
  • No onward chain

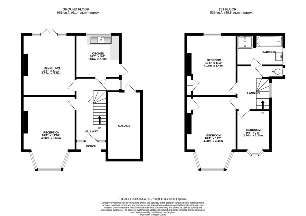
A fabulous opportunity for the buyer who likes a project, this is a 1930's three bedroom semi which has had little done to it over the years and is possibly one of the last few remaining houses in this area which offer this potential. Three bedrooms, two separate reception rooms, own drive and garage, all located in a sought after location close to Whitton High street.

FOR SALE:

For the first time in many years, this 1930's built property has been in the same family for some time and is now offered for sale as a blank canvas, ideal for the incoming purchaser to remodel, extend and update to their own style and standards, this is an opportunity to create a home that is totally as you would like it. (please note all alterations and extensions may be subject to local authority approval and it would be advisable to check first.) The room sizes are generous, with two double bedrooms to the first floor plus the usual third, which is also well proportioned. These are served by a family bathroom with bath and shower, again this would benefit from replacement. to the ground floor there are two ample receptions and a good size kitchen. We understand there may be a gas supply to the house, (not confirmed) but there is no meter.
OUTSIDE: There is a front garden and own driveway which lead to the attached garage. Please note there is a hole in the garage roof. The shared side access way leads through to the rear garden which is approximately 50ft long, and is well enclosed.

LOCATION:

Strathearn Avenue is one of Whitton's more sought after locations, being within walking distance of the high street, with its comprehensive range of small independent shops and small name supermarkets as well as the usual selection of small cafe's and restaurants. Bus routes along the Percy Road provide a good service to local towns and the area is well served by several local schools.

Nearest Stations

  • Whitton - 0.26miles
  • Fulwell - 1.02miles
  • Hounslow - 1.05miles
  • Strawberry Hill - 1.09miles
  • Twickenham - 1.35miles

Stamp Duty

Calculate Your Stamp Duty

£

Results

Stamp Duty To Pay:

Effective Rate:

Tax Band % Taxable Sum Tax

Location

Floorplans

Floorplan for Strathearn Avenue, Whitton EPC Graph for Strathearn Avenue, Whitton

Similar Properties