Camera icon View Gallery
Next Button
Prev Button

3 Bed House - Semi-Detached For Sale
Village Way, Ashford

Asking Price GBP 650,000

Overview

3 2 2

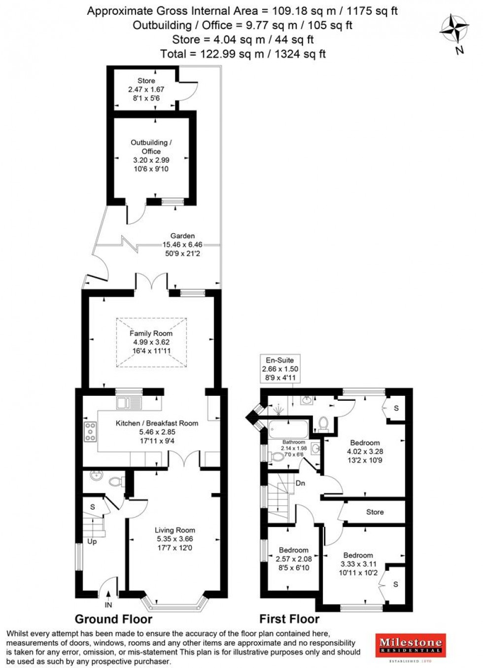
  • 3 Bedroom Semi Detached Home
  • Immaculate Condition
  • 2 Reception Rooms
  • Master Bedroom with Ensuite
  • Good Size Family Bathroom
  • Downstairs WC
  • Detached Home Office
  • South Facing Garden
  • Driveway Parking for 2/3 cars
  • Premier Town Centre Location

We are pleased to offer for sale this beautifully presented 3-bedroom semi-detached family home with a south facing garden in a highly regarded tree-lined road just moments walk of Ashford town centre and station. In excellent ready to move in condition. A viewing is highly recommended.

FOR SALE

An immaculate semi-detached home. The welcoming reception hall has a door to the cloakroom and door to the front reception room with bay window and fitted wooden shutters. Double doors lead to a spacious and well fitted modern kitchen with open access to a bright and airy dining/family room and doors to the south facing garden with a detached home office at rear. There is Hickory veneer flooring throughout on the ground floor, The first floor features the master bedroom with luxury ensuite facilities and 2 further bedrooms and a family bathroom. Finished to a high standard, in ready to move in condition

LOCATION

Situated in one of the most desirable and sought after tree lined residential road in Ashford. Just minutes walk of town centre and station. The delights of Bedfont lakes and country park are also closeby.

Nearest Stations

  • Ashford (Surrey) - 0.24miles
  • Heathrow Terminal 4 - 1.67miles
  • Heathrow Terminal 4 Underground Station - 1.68miles
  • Staines - 1.78miles
  • Upper Halliford - 2.12miles

Stamp Duty

Calculate Your Stamp Duty

£

Results

Stamp Duty To Pay:

Effective Rate:

Tax Band % Taxable Sum Tax

Location

Floorplans

Floorplan for Village Way, Ashford