Camera icon View Gallery
Next Button
Prev Button

2 Bed Bungalow For Sale
Dorset Road, Ashford

Asking Price GBP 475,000

Overview

2 1 1

  • Semi Detached Bungalow
  • 2 Double Bedrooms
  • Extended Lounge/Dining Room
  • Sunny Garden
  • Garage
  • Popular Location

An appealing, extended 2-bedroom semi-detached bungalow with potential to extend further (STP) Having a sunny aspect garden, off street parking and garage. Sought after residential road.

FOR SALE

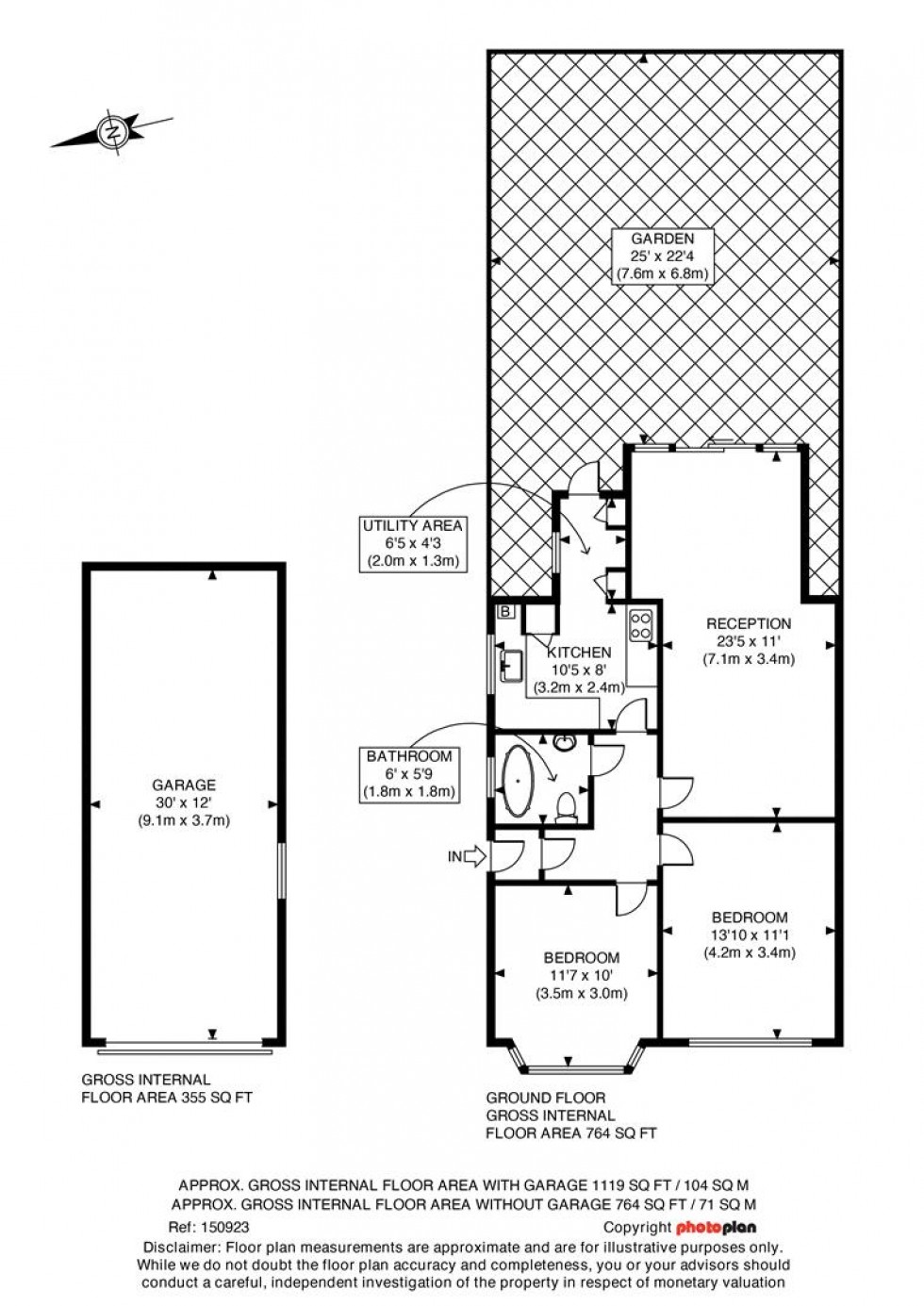
A well presented 2 double bedroom semi-detached bungalow featuring an entrance hall with access to an extended lounge/dining room, modern kitchen and bathroom with a roll top bath. There is potential to extend into the loft subject to planning. The property also provides off street parking and garage at rear.

LOCATION

Situated in a popular residential development just minutes’ walk of Ashford Park primary school, Ashford Park and local convenience stores. Ashford hospital, town centre and station are also close by. The close proximity of the A30 provides easy access to Staines town centre, Heathrow airport and the M25 and M3 motorways.

Nearest Stations

  • Ashford (Surrey) - 0.37miles
  • Staines - 1.22miles
  • Heathrow Terminal 4 - 1.92miles
  • Heathrow Terminal 4 Underground Station - 1.93miles
  • Heathrow Terminal 5 Underground Station - 2.29miles

Stamp Duty

Calculate Your Stamp Duty

£

Results

Stamp Duty To Pay:

Effective Rate:

Tax Band % Taxable Sum Tax

Location

Floorplans

Floorplan for Dorset Road, Ashford Floorplan for Dorset Road, Ashford EPC Graph for Dorset Road, Ashford

Similar Properties